Baseado no projeto arquitetônico, meu objetivo neste trabalho foi a criação de modelo estrutural para suportar a ampliação da residência, estabelecida em Indaiatuba – Condomínio Maison du Park.
O trabalho foi inciado pela avaliação dos elementos existentes, visto que não possuía o projeto estrutural original. A investigação foi realizada identificando pilares e vigas em pontos estratégicos para calcular se seriam suficientemente capazes de suportar os novos elementos estruturais que seriam desenvolvidos.

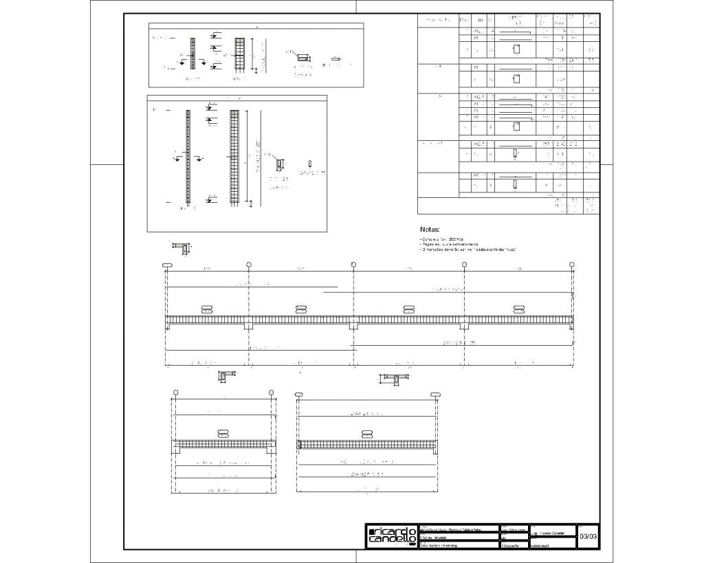
Identificação de pilares, dimensões de concreto, bitola e quantidade de armadura longitudinal.

Identificação do tipo de laje e sentido dos apoios.
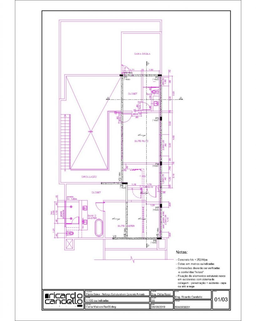
Com base nos dados coletados foi desenvolvida a solução estrutural abaixo:
Resultado: criação de novos elementos estruturais, solução de fixação, dimensionamento e tabela de ferros.





